Este proyecto de casas ecologicas de la Universidad de Tongji, la “Para Eco House” mezcla el diseño paramétrico con sistemas ecológicos específicos. utilizando sistemas activos y pasivos, tienen el objetivo de reducir las emisiones de CO2 en el medio ambiente. La idea es revestir la casa con una piel con varias capas, fruto del Dao en la filosofía oriental y las ideas de Michel Foucault, especialmente cuadno nos centramos el autosostenibilidad.
Obtenemos 3 capas dispuestas en 4 diferentes espacios: el espacio exterior, el espacio semi-abierto, el espacio cerrado y el espacio del patio interior.
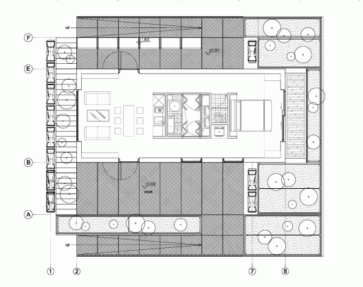
El espacio semiabierto:
Es el espacio que rodea la piel de madera, integra la energía del sol, el aire, la sombra y las plantas. Se trata de los rombos que rodean la casa ecologica, en ellos se hayan placas fotovoltaicas y sombreado pasivo. Las dimensiones de los rombos pueden variar según la intensidad del viento exterior. Existe también un sistema de acumulación de agua bajo los humedales para mejorar la calidad del ambiente, existe también un sistema de nebulización de agua para refrescar el ambiente.
El espacio cerrado:
Es el espacio de 55M2 que incluye los interiores de la casa, Es un espacio flexible con mobiliario trabsformable, optimizable según las necesidades de los habitantes.
El patio interior:
Maneja el equilibrio entre el exterior de la casa ecologica y el interior. Es donde se ubican las instalaciones activas y su principal función es la de ventilar e iluminar la vivienda.
Las capas de la casa también tienen un protegonismo especial en la ecologia. Pasamos a explicar estas pieles:
Piel sensible:
Se trata de los rombos que componen la fachada, esta celosía ecologica se encarga de recoger la energía solar, proporcionar sombra y ventilar el ambiente. Las placas fotovoltaicas se desplazan activamente para seguir el recorrido del sol. La ventilación se refresca gracias a la vegetación que se haya en estas células. Decimos que es sensible ya que es activa según las condiciones del clima.
Piel con control térmico:
Es el aislamiento térmico, hecho mediante XPS y celulosa (fragmentos de papel de diario). Dispone de una doble capa de aislamiento así que esta es magnífica.
La piel patio:
Centraliza las instalaciones más importantes. La casa funciona inteligentemente gracias a esta piel informatizada.










christian louboutin outlet
ResponderEliminarbaltimore ravens jerseys
pandora jewelry
ray ban sunglasses
true religion
karen millen uk
tory burch outlet online
polo ralph lauren outlet
burberry handbags
surpa sneakers
indianapolis colts jerseys
air force 1 shoes
cheap oakley sunglasses
new orleans saints jerseys
san antonio spurs jerseys
kansas city chiefs jerseys
oakley sunglasses
ysl outlet
stuart weitzman boots
michael kors handbags
cheap nike shoes
mulberry outlet
koby bryant shoes
oakland raiders jerseys
ralph lauren outlet
coach outlet
nike running shoes
true religion jeans
ray ban sunglasses
louis vuitton handbags
cai201566
abercrombie and fitch, coachfactory.com, michael kors outlet online sale, oakley outlet, coach outlet store, nike outlet store, babyliss pro, lululemon canada, northface, swarovski crystals, new balance, true religion jeans, ugg australia, chanel purses, knockoff handbags, jordan release, oakley sunglasses cheap, burberry.com, michael kors taschen, longchamp outlet, cheap michael kors, ralph lauren outlet, thomas sabo, ralph lauren, jordan retro 11, coach outlet store online, ralph lauren outlet online, converse sneakers, barbour sale, bebe outlet, polo ralph lauren outlet online, nike.se, polo ralph lauren, coach factory online, cheap michael kors, prada sneakers, ray ban sonnenbrillen, relojes especiales, nike air max, louis vuitton canada, ralph lauren canada, gucci, uggs, bcbg max azria
ResponderEliminar2015-12-2 xiaozhengm
ResponderEliminartommy hilfiger outlet
burberry outlet
michael kors uk
michael kors uk
michael kors handbags
louis vuitton
toms outlet
fitflops clearance
coach factory outlet
christian louboutin outlet
cheap jordans
kate spade
cheap ugg boots
sac longchamp
louis vuitton outlet
jordan 13
nike air max shoes
jordan 4 toro
fitflop uk
oakley vault
gucci outlet
jordan 8s
michael kors outlet
ghd hair straighteners
coach outlet
coach factory outlet
louis vuitton bags
pandora charms
louis vuitton handbags
nike tn
michael kors outlet uk
ugg sale
sac longchamp pas cher
ghd
kate spade outlet
ugg outlet
christian louboutin shoes
sac longchamp pliage
toms wedges
nike free runs
20161031 junda
ResponderEliminarmichael kors outlet store
michael kors outlet
nike outlet store
coach outlet online
canada goose jackets
tory burch outlet
michael kors outlet clearance
mac cosmetics
rolex watches
ray ban sunglasses
michael kors handbags outlet
michael kors handbags
lebron james shoes
ugg boots
chrome hearts
ugg sale
true religion jeans
longchamp outlet
nike air max 2015
michael kors outlet
rolex outlet
ugg boots
ray ban sunglasses
ralph lauren polo
ugg sale
nike huarache
uggs canada
ferragamo outlet
michael kors outlet clearance
tiffany jewellery
michael kors outlet
coach handbags
pandora jewelry
cartier watches
prada sunglasses
canada goose jackets
fitflops
ResponderEliminarmichael kors handbags sale
the north face outlet
new york giants jerseys
tennessee titans jersey
houston texans jerseys
michael kors outlet
chaussure louboutin
christian louboutin shoes
longchamp le pliage
michael kors handbags
ResponderEliminaroakley sunglasses
skechers shoes
nike blazer
polo outlet
ralph lauren outlet online
nike outlet
jordan shoes
adidas nmd runner
adidas nmd r1